w66利来最给利的老牌



椭圆弛张振动筛

您的当前位置: 河南w66利来最给利的老牌振动筛厂家 > 产品中心 > 圆振动筛分筛选机 > 正文

椭圆弛张振动筛

生产能力:100-1000T/h

应用行业:广泛用于矿山、煤炭、冶炼、建材、耐火材料、轻工、化工等行业

价格区间:100000-500000元/台

产品别称:张弛椭圆振动筛,张弛筛,张弛振动筛

厂家直销品质保障闪电发货服务无忧
24小时免费咨询热线13781984528
免费获取报价
椭圆弛张振动筛

椭圆弛张振动筛

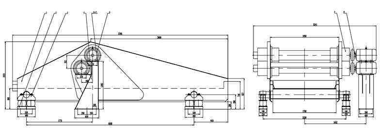
椭圆弛张振动筛是一种物料在筛面上程椭圆型行走的筛机,多数采用单轴或者双轴激振器,也可以做成三轴的,具有结构可靠、激振w66利来最给利的老牌、筛分效率高、振动噪音小、坚固耐用、维修方便、使用安全等特点,

椭圆弛张振动筛筛面采用聚氨酯材料,具有很好的张弛效果,对于粘性比较大的物料处理效果极佳。

椭圆弛张振动筛利用普通电机外拖振动器,使筛体沿激振力方向作周期往复性振动,物料在筛面上作圆运动,从而达到筛分目的。由振动源、筛体、筛网、减振装置、底座等组成,结构合理,坚固耐用。


真机图片

椭圆弛张振动筛

椭圆弛张振动筛

椭圆弛张振动筛

工作原理

w66利来最给利的老牌

椭圆弛张振动筛采用结构简单、制造维修容易的瓣形联轴器和挠性盘联轴器,克服了w66利来最给利的老牌联轴器易损坏的缺陷; 振动器采用偏心式结构,结构简单;可配套选择给料箱,给料箱的应用增加振动筛的有效筛分面积,同时延长进料端筛网使用寿命;传动部分增加了中间过渡轴承座,中间过渡轴承座的应用有效保护了电机,延长了电机使用寿命。电动机安装在筛框的左侧,也可安装在筛框的右侧。该系列筛机为座式安装。筛面倾角的调整可通过改变弹簧支座位置高度来实现。

椭圆弛张振动筛优势

1、由于筛面做弛张运动能够传递给物料50G的加速度,所以能够筛分难筛物料,筛孔不容易堵塞。
2、将香蕉筛和弛张筛的各自优点有机地融合在一起。入料端物料速度快、料层。罅课锪贤干,处理量高。排料端筛面倾角低,物料速度慢,这得以将剩余的筛下物彻底透筛,达到非常高的筛分效率。
3、线性运动的箱式激振器可靠性高、维护简单。
4、弛张筛的聚氨酯筛板是通泰机械公司特殊设计的,以承受50g的振动强度以及每分钟800次的曲张,筛板使用寿命长、筛机坐落在空心的橡胶弹簧上,产生的噪音。蚁鸾旱墒倜。筛机和支撑结构承受的载荷比传统的弛张筛小得多(尽管弛张筛能产生50g的振动强度,远大于传统筛机的5g)。
5、筛分机侧部“U”形设计以形成密封,侧板无磨损,而且防止了筛上物进入筛下、筛板用楔形橡胶条固定,不需要任何螺栓,拆装方便、快捷、筛分机转动部件少,运行可靠性高,日常维护工作量少,利用率高、浮动筛框振幅可调驰张筛技术参数:

筛网说明

w66利来最给利的老牌

w66利来最给利的老牌

w66利来最给利的老牌

最初在市场上的驰张筛筛板是安装在德国进口筛机上,用于原煤和焦炭的分级。该筛板是由浇注机一次成型的聚氨酯弹性体,这种聚氨酯筛板的结构设计体验出聚氨酯弹性体的耐磨性好 、弹性好、断裂伸长率高、耐曲绕的特性,该筛板适用于潮湿物料的筛分,具有筛分效率高、使用寿命长、粒度范围广、无堵塞、不粘结等特点。

w66利来最给利的老牌

物料在筛面上的状态

你也许还需要这些设备!

特种筛分筛选机

直线振动筛分筛选机

回转摇摆筛分筛选机

精细圆形筛分筛选机

上一篇:双轴椭圆振动筛 下一篇:偏心块式圆振动筛

振动筛专业厂家-河w66利来最给利的老牌乡鹏威机械厂 技术支持:志远网络

地 址 :河南省新乡市环宇工业园区 业务电话:13346663698 网址:www.cnshaiji.com 豫ICP备20002553号

X
sitemap网站地图