w66利来最给利的老牌

您的当前位置: 河南w66利来最给利的老牌振动筛厂家 > 新闻中心 > 行业资讯 > 正文

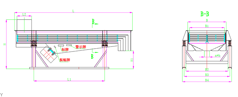
水平直线筛结构图及筛分优势

2020/1/14 13:46:21

水平直线筛是现今使用量很大的筛机,具有耗能低、产量高、结构简单、易维修、全封闭结构,无粉尘溢散,自动排料,更适合于流水线作业,该机采用双激振器驱动,当两台激振器做同步、反向旋转时,其偏心块所产生的激振力在平行于电机轴线的方向相互抵消,在垂直于电机轴的方向叠为一合力,因此筛机的运动轨迹为一直线。其两电机轴相对筛面有一倾角,在激振力和物料自重力的合力作用下,物料在筛面上被抛起跳跃式向前作直线运动,从而达到对物料进行筛选和分级的目的。

水平直线筛结构图

水平直线筛结构图

该机筛分优势

1、高通量: 直线振动筛采用振动电机激励作为振动源,使物料在筛网上抛起,同时直线前进。物料从进料器均匀进入筛选机进料口,通过多层筛网产生各种规格的筛上和筛下物料,分别从各自的出口排出,不存在堵塞现象,产量高。
2、操作维护方便: 直线振动筛采用独特的筛网结构设计,仅需3-5分钟即可方便快捷地更换筛网。此外,筛选机设计合理、精巧、易于组装,一人即可操作。不仅为顾客节省了时间,而且减少了劳动力。
3、高筛选精度: 直线振动筛的筛箱<几种不同厚度的钢板焊接而成。它在加工材料时具有一定的强度和刚度。此外,滤网由几种滤网组成,如低碳钢、黄铜、青铜、不锈钢丝等。因此,整机筛分精度高,无粉尘污染,有利于环保。
4、低成本: 直线振动筛的母网完全支撑细网,因此细网可以有更长的使用寿命,减少细网耗材的使用,如果长时间使用可以降低许多生产成本。另外,直线振动筛可以替代各种筛网,使用寿命长,缩短了更换周期,降低了用户的生产成本。


本文由w66利来最给利的老牌设备有限公司编辑上传,转载请注明来源:/hyzx/84.html
你也许还需要这些设备!

特种筛分筛选机

直线振动筛分筛选机

圆振动筛分筛选机

回转摇摆筛分筛选机

精细圆形筛分筛选机

相关新闻

2022-05-30 破碎、制砂、选矿作业,筛分流程不可少!8种筛分机优劣详解
2021-10-06 生活垃圾筛分机推荐大家使用弹跳筛三维筛分
2022-06-20 振动筛-影响振动筛及各种筛分机械过程的主要因素
2022-06-27 带式输送机包胶滚筒磨损原因分析及改进措施和修补方法
2020-11-23 筛分机箱体是焊接的好还是铆钉拼接的好?
2021-10-11 饲料直线筛造价成本低筛分效果好
2021-07-14 冷却筛分机-冷却过筛机-冷却分选机
2020-04-26 多种物料选用不同的振动筛使用不同材质
2021-11-01 水洗筛沙机可以很好的沙子w66利来最给利的老牌成分去掉
2022-04-25 螺旋输送机-无轴螺旋输送机-管式螺旋输送-螺旋输送机厂家-螺旋输

振动筛专业厂家-河w66利来最给利的老牌乡鹏威机械厂 技术支持:志远网络

地 址 :河南省新乡市环宇工业园区 业务电话:13346663698 网址:www.cnshaiji.com 豫ICP备20002553号

X
sitemap网站地图